Tërmeti i datës 26.11.2019 shkaktoi dëme të shumta në qytetin e Durrësit. Një nga objektet e dëmtuara ishte edhe shkolla Bedrie Bebeziqi. Ky objekt fillimisht ka qenë projektuar për qëllime strehimi dhe më vonë është përshtatur për shkollë nate. Në momentin e dëmtimit strehonte rreth 450 nxënës, numër për të cilin duhej projektuar edhe shkolla e re.
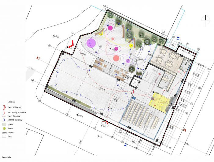
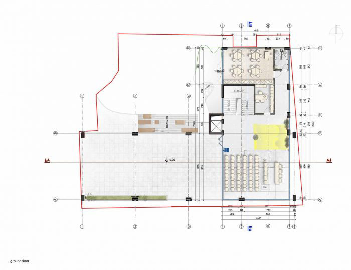
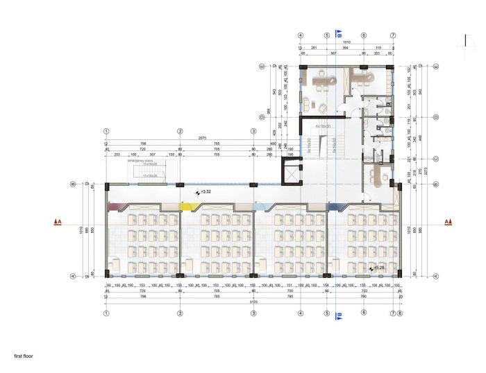
Duke mos qënë e menduar për shkollë në momentin e parë të projektimit, sheshi i saj paraqet shumë problematika për t’u zgjidhur. Dimensioni shumë i vogël i sheshit (745 metra katror), afërsia me objektet e larta dhe numri i madh i nxënësve (450 nxënës), ishin disa nga sfidat për t’u zgjidhur. Për këtë arsye, qëllimet kryesore ishin: orientimi i klasave nga jugu, gjetja e një zgjidhje që lejon përdorimin e një sipërfaqe sa më të madhe të oborrit, si dhe shtimi i funksioneve të domosdoshme për një shkollë bashkëkohore me program të kompletuar (biblioteka, laboratore, kabinete, sallë polivalente, klasa informatike, etj).




Estetikisht, volumet janë trajtuar me një gjeometri të pastër dhe racionale që krijojnë një unitet kompozicional. Ngjyrat e zgjedhura janë të tilla që të krijojnë një atmosferë të përshtatshme për moshën e fëmijëve që e ndjekin, për të diferencuar volumet, si dhe për t’i dhënë gjallëri gjithë zonës në të cilën dominon ngjyra gri.
| Project name | Shkolla Bedrie Bebeziqi |
| Typology | Architechture / Educational |
| Location | Durrës Albania |
| Year | 2021 |
| Status | Completed |
| Size | m2 |
| Floors | 5 |
| Photography | Dardan Vukaj, Albano Guma |
| Team | Enola Muhametaj Martopullo, Anita Hajdari, Albano Guma |