The earthquake on 26.11.2019 caused irreparable damages in Durrës city. Bedrie Bebeziqi School was one of the damaged buildings. Initially it was designed for dwelling purposes and later was destined as an educational facility.
Not being designed as an educational facility in the first place, its site raised several issues to be resolved.
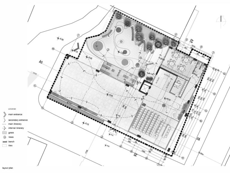
The property area is 745 square meters whilst it is very small to properly concept and design a new school which can host 450 students. However a very challenging site that drives you to think outside the borders.
On its north border, there is an existing 9-story high residential building, which has not maintained the correct urban ruling distance from the school property border. In the east, there is another 10-story high residential building. Even though it actually has a certain distance from the school property, it still creates considerable difficulties concerning the amount of direct sunlight each of the classrooms receive.
In the south, there is no constriction on how to locate and develop the school’s classrooms regarding the amount of direct sunlight, ventilation as well building privacy.
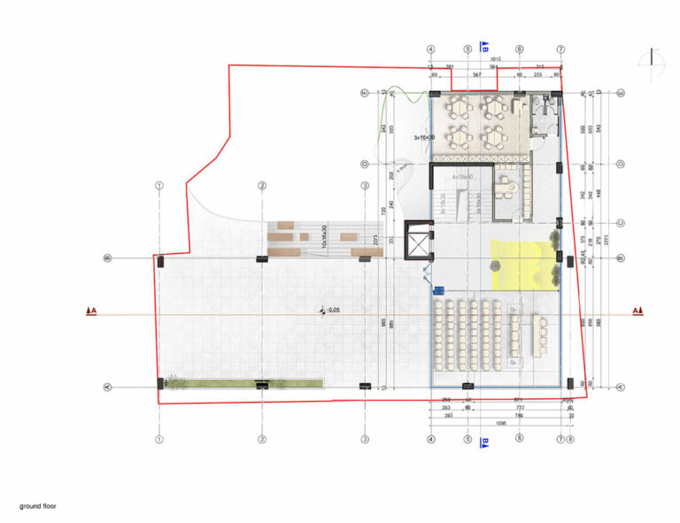
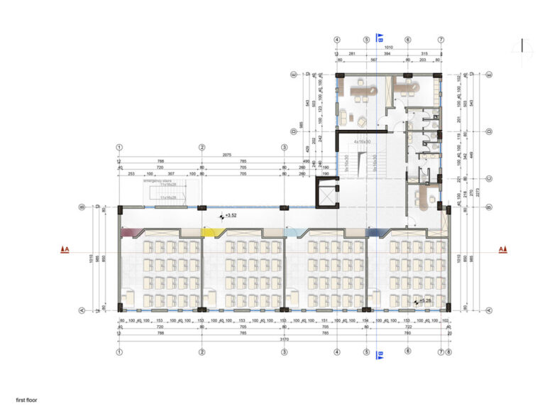
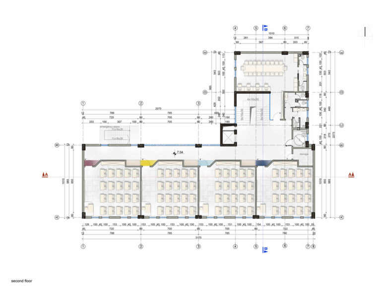
The building is conceived in a simple and rational way, adhering to the basic design norms and proposing sustainable functional and aesthetic solutions. The main objectives considered during the design process were: orientation of all classes from the south, enlarging the school yard as much as possible, adding spaces for missing functions; all in accordance with contemporary standards.





The selected shape necessarily leaves the yard oriented north and northwest. This positioning of the courtyard is inevitable as, its orientation from the south means lack of distance from the building to the north. This solution is unacceptable for the reasons mentioned above, as well as for the legislation in force.
The proposal for this problematic situation is the south wing of the ground floor to be unbuilt and would serve as an extension of the yard. This intervention enables the yard area to be enlarged as well as to better ventilate and ventilate it.
This intervention enables the yard area to be enlarged in comparison to the existing one, its sun exposure from the south, as well as better ventilation.
| Project name | Shkolla Bedrie Bebeziqi |
| Typology | Architechture / Educational |
| Location | Durrës Albania |
| Year | 2021 |
| Status | Completed |
| Size | m2 |
| Floors | 5 |
| Photography | Dardan Vukaj, Albano Guma |
| Team | Enola Muhametaj Martopullo, Anita Hajdari, Albano Guma |